By Charles Pan ’18, Commentary Editor
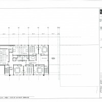
In July 2014, the Rise and Flourish campaign for Newark Academy, led by Ms. Grider and the Advancement Office, announced its intention to start the planning and construction of a new Middle School Wing in Spring 2015. The new, two-story, 26,075 sq. ft. building is set to be built on the softball field behind the arts wing at the beginning of Spring 2016. This addition to the Newark Academy campus will include ten new classrooms, three new science labs, large commons areas for each of the three grades, and faculty offices. It will also be connected to the main campus via the airlock in the arts wing entrance and have its main entrance in front of the Middle School parking lot. This is the third part of the pledge of the Rise and Flourish campaign, the other two having been the new Upper School Wing and the renovations of sports facilities (Kacur Field and Coursen Field).
The details and reasoning behind the construction of the new Middle School Wing are outlined in the July 2014 Rise and Flourish newsletter, which can be read here. As Tom Ashburn, the Middle School Principal at Newark Academy, states, “Our program and curriculum outgrew our physical space a long time ago. I – and many of our Middle School stated – have been dreaming for at least five years what it might be like to have a facility that matched the excellence of our program.” Ashburn described the new space as “an absolutely near-perfect space for teaching and learning for 6th, 7th, and 8th graders.” Construction will begin once the $22 million threshold is reached.
However, not all members of the community were on board with the idea of the addition of an entire new wing. Matt Wei ’16 suggested that if the Middle School students need more space, “Upper School classes could shift many of their locations into the new wing and the Middle School to take the classrooms near the cafeteria.” Other students also felt that the money used to build the new wing should instead be used to renovate the main, existing campus, which would benefit both the Upper School and the Middle School. Paul Brown ’17 even went as far to say that new commons areas for each grade are not needed because “even the tenth grade doesn’t have their own commons space.”
However, one important recurring opinion of those interviewed was the size of the Middle School. Many were concerned that with the construction of the new Middle School came the growth of the number of Middle School students. One student (a sophomore who did not attend the Middle School and who chose to remain anonymous) was concerned that “Newark Academy shouldn’t accept students for the sake of increasing the number of students rather than focusing on credentials.” Paul Brown ’17, a junior who has been at Newark Academy for more than 5 years now, explained his concerns: “If they accept more people into the Middle School, there would be more ‘lifers’ and less room for people applying for ninth grade. Essentially, it makes it a lot harder for people who didn’t go to the Middle School to get accepted, and a middle school application is not as good an indicator of ability as a high school application.”
It would seem that a growing Middle School might have some potentially significant implications for Newark Academy as a whole. Not only would a new wing have to built, but parts of the main campus – such as the cafeteria, the Rose Auditorium, and even art rooms – would have to be expanded to accommodate more incoming students. In addition, Newark Academy would have to hire more teachers and staff members, and make changes to traditions such as Spirit Week.
However, Mr. Ashburn quickly dispelled these concerns. First off, he commented, “There are no plans to increase the size of the Middle School.” He explained that the reasoning behind building a new wing was not only to increase space for the Middle School students but also to introduce better facilities into Newark Academy’s already outdated classrooms, which are poorly rated compared to those of rival schools such as MKA or Pingry. By giving the Middle School its own space, Ashburn explained, Middle School students would not have to follow the same patterns as the Upper School, and the Middle School would have the freedom to tailor their curriculum and schedules to their needs. He also added that there are plans to increase the size of the cafeteria and to renovate the current Middle School classrooms, as well as to renovate the main hallway classrooms so that they are suitable for Upper School use.
Some concerns remain, however, regarding the new Middle School wing, including that Middle School and Upper School wouldn’t feel as “unified” as a Newark Academy community if the Middle School and Upper School were centered in different buildings. However, it is evident that Mr. Ashburn, the Advancement Office, and the planning committee of the new Middle School wing have done an excellent job in thinking out the needs of the Newark Academy Middle School and addressing any concerns that could be brought up by the construction.



Leave a Reply
You must be logged in to post a comment.